- info@alkom-pvc.si
- +386 31 510 599
- Pon-Pet: 8.00 -16:00
ZIMSKI VRT
ZIMSKI VRT
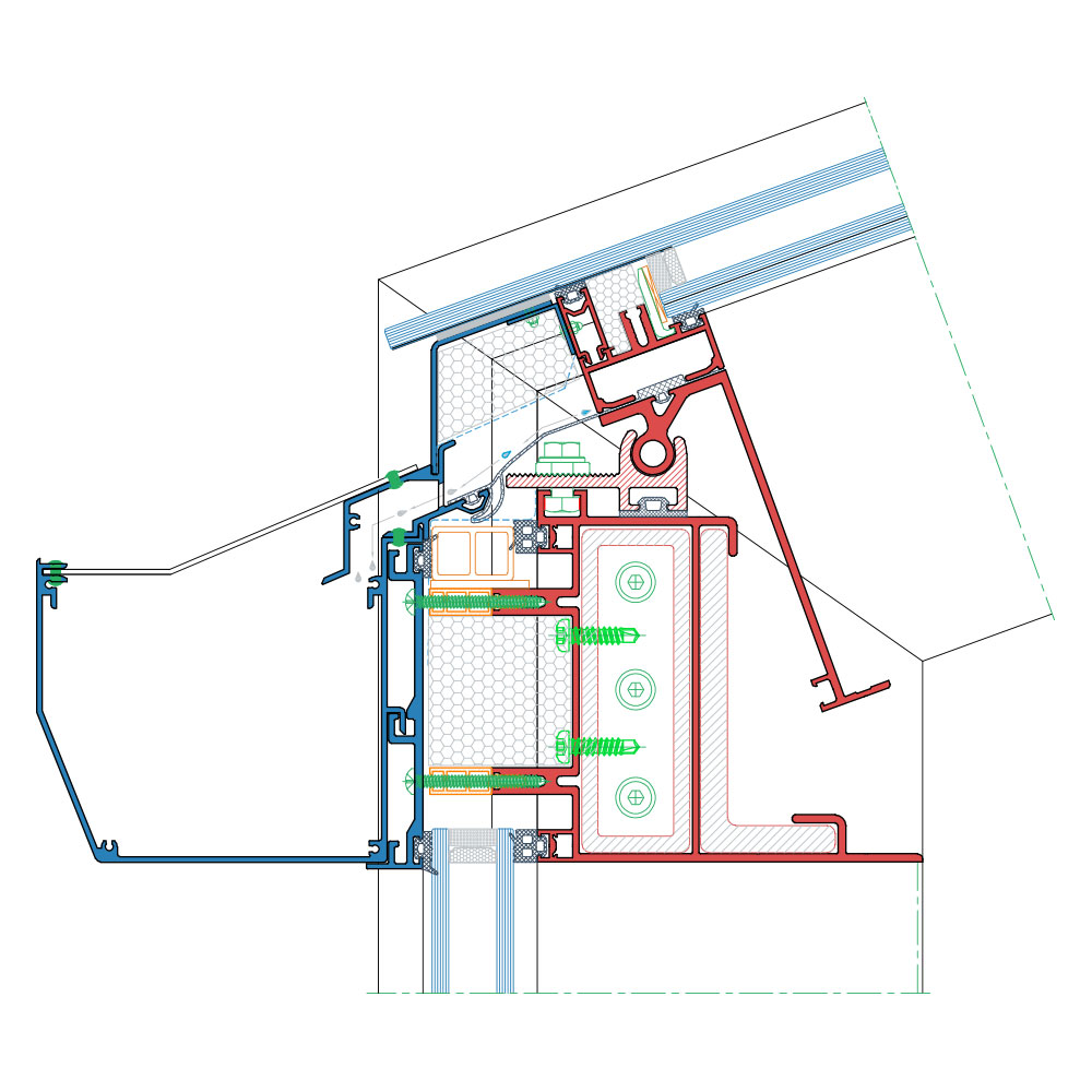
Sistem Zimski vrt je namenjen izdelavi samonosilne, v celoti zastekljene, toplotno izolirane konstrukcije iz aluminijastih profilov. Za odpirajoča se polja se lahko uporabljajo posebej zasnovana okenska krila s tipi, ki se odpirajo navzven, s paralelnim odpiranjem ter strešna okna, prav tako pa tudi FEAL serije oken in vrat.
Zasteklitev zimskega vrta se izvaja s pomočjo EPDM tesnil ter pritrdilnih in pokrivnih letev. Na pritrdilne letve se nameščajo pokrivne letve, ki so lahko različnih oblik in dimenzij. Strukturna zasteklitev se izvaja s pomočjo EPDM tesnil, nosilcev stekla in silikonskega tesnila za strukturno steklo.
PRIPOROČILA ZA ODVODNJAVANJE IN ZAŠČITO
Zaradi prostega odvajanja vode s strehe se priporoča izvedba horizontalnih elementov v strukturni izvedbi. Kot materiali fasadnih komponent se uporabljajo materiali, odporni na vremenske vplive, temperaturne razlike, plesen, ter vodoodporni zaščitni trakovi, ki preprečujejo vdor vode in vlage v izolacijo.
TEHNIČNE ZNAČILNOSTI SISTEMA
- Globina okomice: 120, 140, 160, 200 mm
- Globina horizontalnega profila: 88, 118, 138, 158 mm
- Globina pomožnega horizontalnega profila: 88, 118, 138, 158 mm
- Vidna širina profila: 50 mm
- Globina polnila: 30 mm
- Zrakotesnost: EN 12207
- Vodotesnost: EN 12154
- Odpornost na obremenitev vetra: EN 12210
- Zvočna izolacija: EN ISO 717-1
- Protivlomna zaščita: EN 1627
- Izračun Uf koeficienta: DIN EN ISO 10077-2
- Površinska obdelava: DIN 17611
- Kontrola kakovosti: DIN EN ISO 9001
- Osnovni materijal: EN AW-6060
- Materijal tesnil: EPDM
Alkom-PVC je uradni zastopnik priznanega proizvajalca PVC in ALU stavbnega pohištva MIRAL-PVC za slovenski trg
Kontakt
Uradni zastopnike podjetja: